Aquileia es uno de mis lugares favoritos de Italia. En su momento de mayor esplendor fue una de las ciudades más grandes del Imperio Romano y aunque destruida por el mítico Atila, ha sabido resurgir y llegar hasta nuestros días.
Su basílica con más de 1600 años de historia es sin duda un gran ejemplo de resiliencia y es así como ha cambiado en el tiempo…

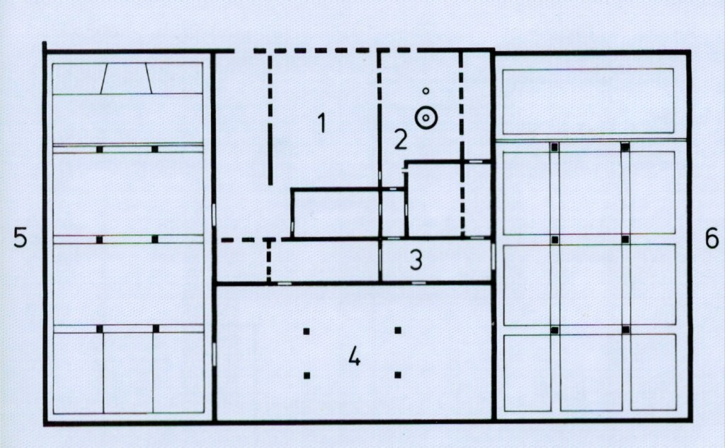
La Basílica de Teodoro
La primera basílica de Aquileia fue edificada por el Obispo Teodoro durante la primera mitad del siglo IV, probablemente aprovechando los cimientos y los muros perimetrales de antiguos graneros que existían en el lugar.



Como se puede apreciar, buena parte de los espléndidos mosaicos que hoy tenemos la oportunidad de admirar en la basílica y en la zona subterránea, donde se hallan los cimientos del campananil, corresponden a los de esta primera Basílica.

El acceso a la estructura se efectuaba desde el este (número 1 en el plano de planta adjunto), lo que permitía acceder a las diversas estancias, incluyendo varias salas de servicio de menor tamaño y el vestidor (número 3). En este último lugar, los catecúmenos se desvestían antes de recibir el bautismo en el baptisterio contiguo (número 2).
Las dos aulas paralelas, identificadas con los números 5 y 6, se encontraban orientadas de oeste a este y cada una presentaba unas dimensiones aproximadas de 37×20 metros. Estas estaban unidas por un aula transversal orientada de sur a norte de 29×13 metros, señalada con el número 4.

Es importante destacar que ambas aulas carecían de ábside y tenían seis columnas que sostenían un techo ricamente ornamentado.
Hasta el dia de hoy no esta claro cual de estas dos aulas, era la iglesia propiamente dicha, mientras que la otra servía como un espacio destinado a la instrucción cristiana de los recién bautizados y a su preparación para integrarse en la comunidad.

La Basílica de Fortunato.

La fase de construcción posterior de la basílica se remonta a mediados del siglo IV, durante el episcopado de Fortunato, con la ampliación de la sala norte tanto en longitud (73×31 m) como en altura, y la creación de un pórtico de cuatro lados frente a la fachada, siguiendo un esquema similar al de la antigua basílica de San Pedro en Roma y al complejo de Tréveri.
La gran basílica, dividida en tres naves por veintiocho columnas y aún sin ábside, estaba conectada, a través del baptisterio, al catecumenio de la antigua basílica teodoriana (sala sur).
Basilica cromaziana

El obispo Cromacio (388-407) fue el encargado de ampliar la sala sur a 65×29 m y de construir nuevas edificaciones, incluyendo el baptisterio actual.
Durante estos años, el patriarcado de Aquilea experimentó su período de mayor esplendor. La gran prosperidad de los años posteriores al Concilio de Aquilea se vio interrumpida abruptamente en el año 452, cuando los Hunos, liderados por Atila, devastaron la ciudad y masacraron a su población.
La basílica del norte, que fue incendiada durante el saqueo, nunca fue reconstruida.
Según algunos estudiosos, la ampliación de la sala sur, se sitúa en los años posteriores a la destrucción de Aquilea por Atila. En ese momento, la población restante, al verse privada de la sala norte, decidió construir la gran sala sur.
Independientemente del período de construcción, la sala estaba dividida en tres naves por veintiocho columnas y carecía de ábside. Estaba precedida por un pórtico y, frente a este, un patio la conectaba con el baptisterio.
Basilica de Massensio

En la primera mitad del siglo IX, específicamente a partir del año 811, el patriarca Massensio, con el respaldo de Carlomagno, inició la restauración de las edificaciones preexistentes. Se procedió a la reutilización de la sala sur del complejo original, a la que se le incorporó un transepto de dimensiones reducidas, un ábside central de configuración semicircular (aunque externamente se presenta delimitado por muros rectos), dos ábsides laterales, un pórtico de menor anchura y proyección, y la estructura conocida como iglesia Pagani, situada entre la basílica y el baptisterio. Adicionalmente, se llevó a cabo la construcción de la cripta.
La Basílica de Poppone

En el año 988, un terremoto provocó daños significativos, lo que impulsó al patriarca Poppone a emprender una restauración integral del complejo. Esta restauración, llevada a cabo en la primera mitad del siglo XI y culminada con la consagración en 1031, adoptó formas románicas con una notable influencia carolingio-otoniana. Se reconstruyó la fachada, conservando el pórtico de Majencio preexistente, se elevaron los muros laterales, se instaló una cubierta de madera y se renovaron tanto el altar como la pintura del ábside.
El ambicioso programa de construcción impulsado por Poppone, culminó con la edificación del gran palacio patriarcal (actualmente desaparecido) y, de un imponente campanil de más de 70 metros de altura que hasta hoy domina el paisaje friulano. Este campanario, erigido sobre una base cuadrada con enormes bloques de mármol procedentes del antiguo anfiteatro, se inspira, según se comenta, en el célebre faro de Alejandría y sirvió de modelo para numerosas construcciones posteriores.
Los últimos cambios
Un nuevo sismo, en 1348, impulsó al patriarca Marquardo de Randeck a emprender nuevas restauraciones y a sustituir los arcos de medio punto de la nave central por arcos ojivales.
La intervención más reciente y significativa data del siglo XV, cuando se encomendó a artesanos y carpinteros venecianos la creación del espléndido techo de madera con forma de casco de barco, el cual se conserva hasta la actualidad.
Y es asi como los muros de la Basílica de Aquileia nos relatan casi dos milenios de historia…



